Neiva, Huila, Colombia +57 () secretario.cultura@huila.gov.co

CASA CURAL ANTIGUA

Villavieja, Huila

CASA CURAL ANTIGUA

Descripción

Construcciónde un solo cuerpo alargado dividido en cuatro espacios internos y galeríasexternas e internas delimitadas por columnas de madera. Posee cubierta  en teja de barro a dos aguas. Al extremo delcuerpo, sobre la galería interior, una parte de la galería se cierra para serutilizada como depósito. La edificación aparece aislada de las construccionesvecinas por medio de tapiales. Sobre la fachada otra pequeña adición posterioren la zona de galería permite proveer de sede a la policía de turismo.

 

Está erigida con muros de tapia pisada y cubierta en teja de barro sobreestructura de madera rolliza encalada

Identificación

Nombre
CASA CURAL ANTIGUA
Departamento
Huila
Municipio
Villavieja
Centro Poblado
na
Dirección
Calle 3 No. 3-30
Barrio
Centro
Cédula catastral
2147483647

Clasificación tipológica

Subgrupo
sg2
Categoría/subcategoría
Vivienda urbana
Clasificación
grp1

Origen

Siglo/periodo
XIX - Colonia
Uso original
Vivienda
Ocupación
Propiedad

Galería de imágenes

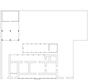
Planimería

Criterios de valoración

Está erigidacon muros de tapia pisada y cubierta en teja de barro sobre estructura demadera rolliza encalada. “…las tapias de adobe y barro para su casa, hasta elestado de quedar aniveladas en su enrase. Están deben quedar de cinco varas dealto, tres cuartas de ancho, inclusive la media vara de salpique que debe serde calicanto”.

 Estado de conservación:

La casa presenta problemas en la cubierta que se manifiesta en manchas ydesprendimiento de pañetes.

 

Forma:

Desde elpunto de vista formal, la antigua casa cural adopta la topología propia decasas rurales de un solo volumen  deforma rectangular cuya proporción oscila generalmente ente 1:3 y 1:4.Interiormente dividida en 3 o 4 espacios separados entre si por muros pero comunicados entre si por un unacirculación central. Posee el modulo galerías longitudinales sobre las fachadaslas cuales por lo general son cerradas en los extremos para proveer de espaciosadicionales utilizados como cuarto sillero o alcoba de servicio.

 

Contextosociocultural:
La antigua casa cural hace parte de las edificaciones con mayorrepresentatividad del municipio tanto por su antigüedad como por el hecho deser el punto de convergencia de toda la actividad turística de la localidad.

 


Origen:

Acerca de lacura, o mejor casa del cura, porque entonces según entendemos, no existían lascasas cúrales, tenemos el texto del contrato de un edificio que posiblemente esel que todavía desempeña tan meritorio y honroso destino. Dice así: Digo yo,Matías Quiroga, vecino de este distrito Parroquial, que en este día hemoscelebrado con el cura don Antonio María Gutiérrez, la contrata que sigue: Meobligo a levantarme de mil cuenta, costo y riesgo, en el solar de la plaza deeste lugar siguiente a la capilla de Santa Barbará, las tapias de adobe y barropara su casa, hasta el estado de quedar aniveladas en su enrase. Están debenquedar de cinco varas de alto, tres cuartas de ancho, inclusive la media varade salpique que debe ser de calicanto, tres puertas y dos ventanas iguales alas de la casa donde hoy  vive don JaséMaría Herrera; siendo la casa de veinte y cuatro varas de largo y siete deancho por el centro. Por cuya obra o trabajo debe darme el señr Dr.trescientos pesos en dinero y ganado, el que yo le pida por el precio quepactamos a la vista de cada res; y también los montes de Guacimal libres parayo sacar los palos de corazón necesarios para el alumbrado de puertas yventanas. Me comprometo a dar principio a la obra el día dos de enero deinmediato añ de 1838, en cuya fecha, y sucesivamente cada mes se me debe dar abuena cuenta treinta y dos pesos y las reses que necesito. Es de mi obligaciónentregar esta obra, de la fecha de este instrumento con cinco meses sin mástérmino ni dilación, pues para ello me obligo con mi persona y bienes engeneral, lo mismo que a los costos, costas, dañs y perjuicios que se originenpor mi falta. Y para que conste lo firmo ante testigos en Villavieja, a 30 dediciembre de 1837. Matías Quiroga. Testigo, Ildefonso Granados, José FermínGaleano”. 

 

Significado actual

Lasignificación cultural de la casa cural antigua de Villavieja se fundamenta enlos reconocidos valores arquitectónicos que posee, la tradición antigua de serla sede de la administración religiosa de la localidad y el hecho de estarrelacionada con el Museo paleontológico donde se exhiben la mas representativaspiezas que componen el patrimonio arqueológico de la localidad.

 

Bibliografía

1.- DÍAZ JORDÁN, Jenaro. Proceso Histórico de laDiócesis de Garzón. Imprenta Departamental, Neiva 1959. Pág.  216