Neiva, Huila, Colombia +57 () secretario.cultura@huila.gov.co

CAPILLA DE SANTA BARBARA

Villavieja, Huila

CAPILLA DE SANTA BARBARA

Descripción

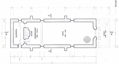
Tipológicamente elvolumen de la capilla está constituido por una sola nave

de forma rectangularalargada. Exteriormente. El plano de la fachada

presenta un accesodemarcado por un pórtico de inspiración clásica; este se

inscribe en el ordendórico y enmarca un arco de medio punto con pilastras

adosadas al muro. El espacio interior de la capilla consta de una solanave

dividida en dos espacios por un muro retablo en mampostería deladrillo. El

primer espacio albergael área de la feligresía y el del presbiterio; este

ultimo es resaltado conun cambio de nivel de dos escalones y una baranda

de madera. En el primerespacio los muros laterales presentan cuatro

ventanas enfrentadas;dos al costado oriental y dos en el occidental. La

sacristía tiene unaventana en el costado occidental y la puerta al oriental

comunicando con laantigua casa cural. Los cuatro contrafuertes ubicados

encada uno de los costados externos fueron adicionados posteriormente.

Identificación

Nombre
CAPILLA DE SANTA BARBARA
Departamento
Huila
Municipio
Villavieja
Centro Poblado
na
Dirección
Calle 3 carrera 3 esquina Costado sur occidental Parque Principal
Barrio
Centro
Nº de manzana
022
Cédula catastral
2147483647
Matrícula inmobiliaria
000

Clasificación tipológica

Subgrupo
sg4
Categoría/subcategoría
Capilla
Clasificación
grp1

Origen

Siglo/periodo
XVIII -Colonial
Uso original
Culto
Ocupación
Propiedad

Galería de imágenes

Planimería

Criterios de valoración

Constitución del bien (materiales y técnicas constructivas): La capilla se erige sobrecimentación ciclópea hecha de piedra de río unida por argamasa de cal y arena.Entre el cimiento y los muros existe una transición en ladrillo cocido. El murode la fachada es de ladrillo cocido y alcanza un espesor de 85 centímetros (unavara castellana). Los muros laterales son construidos parcialmente en tapiapisada alternados con hiladas de ladrillo y alcanzan un espesor 67 centímetrosde ancho aproximadamente.

Los pisos de la capilla son de dos tipos, en el interior tablóncerámico de 23x23 centímetros y los del atrio de forma octagonal fueroncolocados en 1973 y pertenecieron a una hacienda jesuítica derruida. Lacubierta en teja de barro se soporta sobre una armadura de rey de 9 cerchas enmadera rolliza al igual que los pisos, la cubierta fue remodelada a principiosde los añs 70. 1

 

Estado de conservación: La cimentación del inmueble se encuentra en buen estado. Loscontrafuertes si presentaban asentamientos debido a la falta de acabados quedetuvieran la filtración de aguas lluvias y la carencia de adecuado amarreentre el muro de tapia y el contrafuerte. Los muros de la capilla que conformanlos cuatro planos de las fachadas presentan buen comportamiento y no evidencianasentamientos o grietas; mostraban desplomes en la parte superior debido a los empujes axiales de laarmadura de cubierta sobre ellos. Los contrafuertes son los elementos quepresentaban mayores problemas ya que al ser construidos posteriormente no seamarraron adecuadamente al muro dejando inoperante la función para la cualfueron concebidos, este hecho unido a la falla en el cimiento de los mismoshace que aparecieran separados del muro. La armadura de cubierta que presentabagraves fallas de diseñ como la ausencia de viga solera y apoyos deficientes dela cumbrera, fue restituida en el proceso de restauración adelantado en elinmueble, adoptando una nueva en par y nudillo en madera aserrada en reemplazode una de reyes en madera rolliza.

 

Formales: Coincidencialmenteo no, a pesar de sus modestas proporciones, la capilla se Santa Bárbara muestraen su diseñ y concepción buen uso de la geometría. Tanto en su planta como ensu alzado siendo el círculo el elemento de proporción. En la planta de lacapilla se inscriben perfectamente tres círculos de 9 varas castellanas dediámetro (0.85 mts.), los dos primeros se destinan al área de los feligreses yel tercero dividido en dos para el presbiterio y la sacristía. En corte seencuentra el mismo círculo inscrito dentro del espacio interior de la capilla,tomando como puntos tangentes el piso, los muros interiores y las alfardas dela cubierta. También en la fachada se encuentra la proporción del círculo en elpórtico de acceso.

Origen: Aunque no secuenta con datos precisos sobre la época de construcción de la capilla, estaparece haber sido edificada por los Jesuitas durante el periodo que poseyeron yadministraron la famosa Hacienda de los Aposentos de Villavieja entre los añs1631 y 1767. Es precisamente en este ultimo añ y a partir de su expulsión dela Nueva Granada que se tienen las primeras noticias de la capilla. “Elinventario iniciado el 19 de agosto de 1767 en la Hacienda de Villavieja dondetenían los padres de la Compañía de Jesús su suntuosa residencia y bienornamentada capilla y alhajas de su ornato”

En 1775 es citada nuevamente por documentos, esta vez sirviendo de basepara la tercera y definitiva fundación de Villavieja. “El gobernador JoséAntonio de lago  opinó que para formar lapoblación se escogiera el hato de Villavieja en donde estaba la capilla de lahacienda… la Junta Superior de Temporalidades respondió con fecha 7 de mayo de1775, a una petición en este sentido, que desde luego aplica y adjudica  la capilla de la Hacienda de Villavieja paraque sirva de iglesia a la parroquia, concediendo al mismo tiempo el cuado de lapalaza y casa de habitación del señr cura…”

El anterior documento citado por Díaz Jordán también hace referencia alas dimensiones que entonces tenía la capilla “Elijo y separo en cualquiera delos dichos costados para la iglesia el terreno de ciento cuarenta y ocho piesde largo y treinta de ancho que son los mismos que tiene la actual capilla”. Elanterior párrafo parece hacer referencia inclusive al lote circundante.

 

Alrededor de 1.800 se piensa en reedificarla ya que a criterios delcura José Joaquín Cardozo la capilla amenaza ruina. El 25 de abril de 1821elcura convoca la Junta para promover y emprender la reconstrucción del temploque estaba en ruinas; a ultima hora resolvieron construir uno nuevo en otrositio. Las obras se inician en otro costado de la plaza  el 2 de enero de 1822.

 

Documentos manuscritos correspondientes al proceso de conformación dela parroquia en Villavieja fechados en 1795 hacen referencia de la capilla y ladescriben como una construcción de bahareque con techo pajizo lo cual indica laexistencia de construcciones precedentes, hecho que pudo ser conformado en elproceso de arqueología colonial realizado en el costado oriental anexo a lasacristía donde se encontraron huellas de dos edificaciones, siendo las  características de la primera de ellas, elpiso de tierra  y la construcción demadera (bahareque)

 

Contoda esta información, se puede concluir que la Capilla de santa Bárbara deVillavieja de pudo haber edificado en sus actuales condiciones a principios delsiglo XIX.

Autoría:Desconocida

 

Contexto sociocultural: La capilla de Santa Bárbara ha estado íntimamente ligada a la historiay la idiosincrasia de la población inclusive desde que sus dispersos habitantesluchaban por congregarse para conformar una parroquia precisamente alrededor dela capilla. Desde entonces la antigua construcción ha estado ligada a laidentidad cultural del habitante de villavieja, superando inclusive en muchasocasiones la categoría y dimensiones de su templo parroquia. Constituye ademásla Capilla el punto más relevante; desde el punto de vista urbanístico, de unode los pocos conjuntos urbanos homogéneos que posee el Departamento del Huila.


Significado actual

La Capilla de Santa Bárbara de Villavieja constituye un elementoreferencial de identidad no solo del municipio sino del departamento del Huila.A nivel regional, la capilla  seencuentra posicionada como uno de los iconos representativos del departamento del Huila, transmite laimagen de una tierra con historia y tradiciones muy fuertes que tienen suarraigo en los primeros añs de la conquista en tierras huilenses. Aparte de lasignificación como referente de identidad cultural, la edificación representaun valioso testimonio en la historia de la arquitectura nacional, valor que lerepresentó su exaltación como Monumento Nacional.

 

Bibliografía

1.- VILLAMIZAR Oscar Eduardo. EstudiosComplementarios Para La Restauración De La Capilla De Santa Bárbara EnVillavieja. Secretaría de cultura y turismo del huila. Julio 2006. Pág. 16